丝杠车床改光杠键槽铣专机进给系统设计的文件格式为dwg,文件打开参考AutoCAD软件,此图纸模型关键词:车床,专机,键槽,进给,设计,下载
内容相关


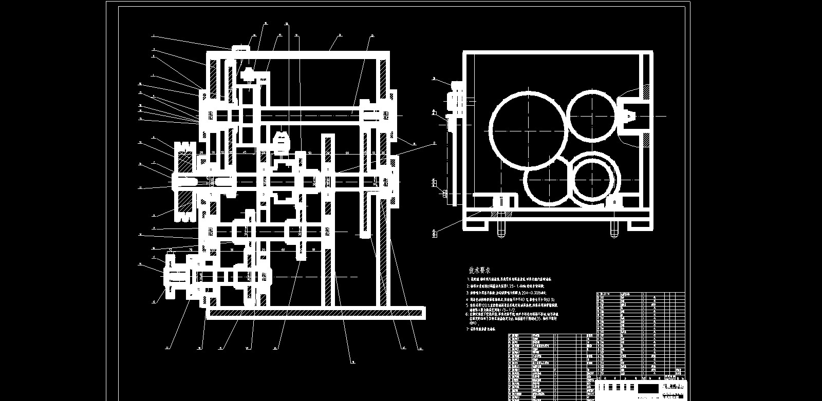
将旧车床改造成拉削齿轮内花键的拉床及主体部分设计
将旧车床改造成拉削齿轮内花键的拉床及主体部分设计的文件格式为dwg,文件打开参考AutoCAD软件,此图纸模型关键词:车床,齿轮,主体,拉床,花键,下载
0


将旧车床改造成拉削齿轮内花键的拉床及浮动部分设计
将旧车床改造成拉削齿轮内花键的拉床及浮动部分设计的文件格式为dwg,文件打开参考AutoCAD软件,此图纸模型关键词:车床,齿轮,浮动,拉床,花键,下载
0






CA6140车床后拖架零件加工工艺及铣底面专用夹具设计
CA6140车床后拖架零件加工工艺及铣底面专用夹具设计的文件格式为dwg,文件打开参考AutoCAD软件,此图纸模型关键词:夹具,车床,零件,专用,工艺,下载
0













